5.000.000₫
✅ Decoviet chuyên thiết kế thi công nội thất đẹp giá rẻ.
✅ Thi công nội thất căn hộ trọn gói giá rẻ.
✅ Cung cấp nội thất giá rẻ.
✅ Công ty thi công nội thất căn hộ uy tín.
✅ Tư vấn tại nhà, thanh toán linh hoạt.
Tình trạng hàng: Hàng mới - còn hàng.
Hỗ trợ tư vấn miễn phí - Zalo/Viber
Miễn phí giao hàng tại TP. Hồ Chí Minh
69/52 Nguyễn Gia Trí (Hẻm Xe Tải), P 25, Bình Thạnh
HCM: 31 Đường D4, Khu Him Lam Mới, P. Tân Hưng, Q7
HCM: 656 Võ Nguyên Giáp, P. Phước Long B, Thủ Đức
Biên Hòa: 24 Nguyễn Văn Hoa, P. Thống Nhất, TP. Biên Hòa
Bình Dương: 341 Đường 30/4, P. Phú Thọ, Tp Thủ Dầu Một
Bình Định: 1002 Trần Hưng Đạo, P. Đống Đa, Tp. Quy Nhơn
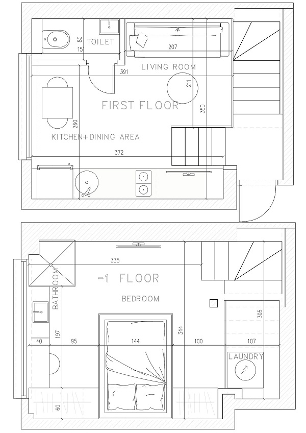
Căn Hộ Với Bức Tường Tủ Lưu Trữ Tiện Ích – Mỗi tầng cung cấp một không gian có phong cách khác nhau, tường gạch thông minh cùng bề mặt gỗ tạo thêm sự tương phản về hình ảnh và kết cấu. Chỉ rộng vỏn vẹn 36m² nhưng căn hộ hai tầng nhỏ ở Tel Aviv này thực sự là nơi đáng để sống với thiết kế thông minh, không gian, mang đến sự linh hoạt.
Được tạo ra cho lối sống của một sinh viên nơi đô thị, căn hộ tân trang trong tòa nhà này từng sử dụng để làm nơi buôn bán. Mỗi tầng cung cấp một không gian có phong cách khác nhau, tường gạch thông minh cùng bề mặt gỗ tạo thêm sự tương phản về hình ảnh và kết cấu. Xưởng thiết kế kiến trúc Nitzan Horovitz chia sơ đồ tầng thành hai khu vực riêng biệt; một ở tầng dưới nhà ở không gian riêng tư và một ở tầng trên giữ các khu vực công cộng hơn.
Mỗi tầng chứa một loạt các kệ và tủ tích hợp trong Formica trắng và các sọc đen mang lại sự liên tục trực quan trong toàn bộ nội thất.

Căn Hộ Với Bức Tường Tủ Lưu Trữ Tiện Ích
Từ trên tầng cao đi xuống phòng ngủ ở vị trí thấp hơn với khu vực lưu trữ rộng rãi.

Căn Hộ Với Bức Tường Tủ Lưu Trữ Tiện Ích
Phòng ngủ, phòng tắm và một khu vực học hành ở tầng dưới, trong khi tầng trên có bếp, khu vực ăn uống và không gian sinh hoạt. Hai phần cầu thang khác nhau dẫn đến mỗi khu vực này.

Phòng ngủ chính ở tầng trệt với phòng tắm bên cạnh

Căn Hộ Với Bức Tường Tủ Lưu Trữ Tiện Ích
Thiết kế chia tầng của căn hộ nhỏ bé Tel Aviv với các đơn vị lưu trữ formica màu trắng.

Khu vực sinh hoạt cao cấp của căn hộ nhỏ Tel Aviv với thiết kế tiết kiệm không gian.

Căn Hộ Với Bức Tường Tủ Lưu Trữ Tiện Ích
Màu đen và trắng của cầu thang làm tăng thêm sự quyến rũ cho chất liệu.

Bàn làm việc bên cạnh phòng tắm cũng có thể được sử dụng làm không gian làm việc.

Căn Hộ Với Bức Tường Tủ Lưu Trữ Tiện Ích
Nhà bếp hiện đại tuyệt đẹp với Formica sọc trắng và sọc đen.

Phần tường gạch thú vị của căn hộ làm tăng thêm sự tương phản về thị giác.

Căn Hộ Với Bức Tường Tủ Lưu Trữ Tiện Ích
Tủ lưu trữ màu trắng với lớp lót màu đen được trải đều khắp phòng ngủ.

Kế hoạch thiết kế không gian tiết kiệm của căn hộ nhỏ ở Tel Aviv qua hai cấp độ khác nhau.